
Skladový Areál
Křečkov
K pronájmu

O areálu
Představujeme moderní areál ve fázi realizace o rozloze 5000m2 v obci Křečkov.Halu lze postavit na míru, s možností individuál- ních uprav dispozic i vybavení dle požadavků budoucího uživatele, s možností nastěhování již do 12 měsíců od podpisu smlouvy.Hlavní objekt je navržen jako flexibilní hala, která v sobě kombinuje výrobní prostory, skladové kapacity, administrativní zázemí a případně i by- tové jednotky pro zaměstnance. Projekt nabízí široké využití a lze jej přizpůsobit specifickým potřebám. Součástí areálu je parkoviště a manipulační plocha pro nákladní vozidla přímo před halou.
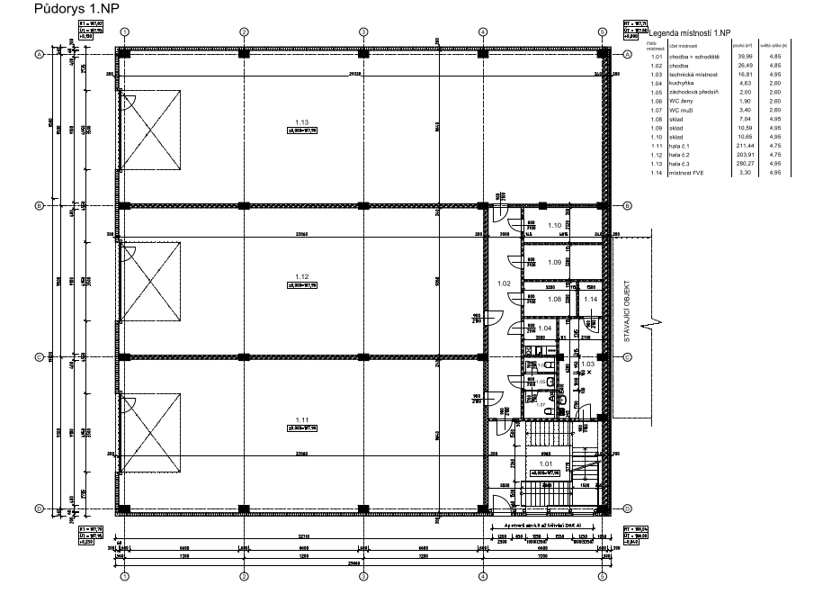
Dispozice - 1 NP
První patro je rozděleno do tří hlavních skladových jednotek, přičemž je možné jejich propojení nebo oddělení dle požadavků.Hala 01 - 211,44m², světlá výška 4,75mHala 01 - 203,91m², světlá výška 4,75mHala 01 - 280,27m², světlá výška 4,95m

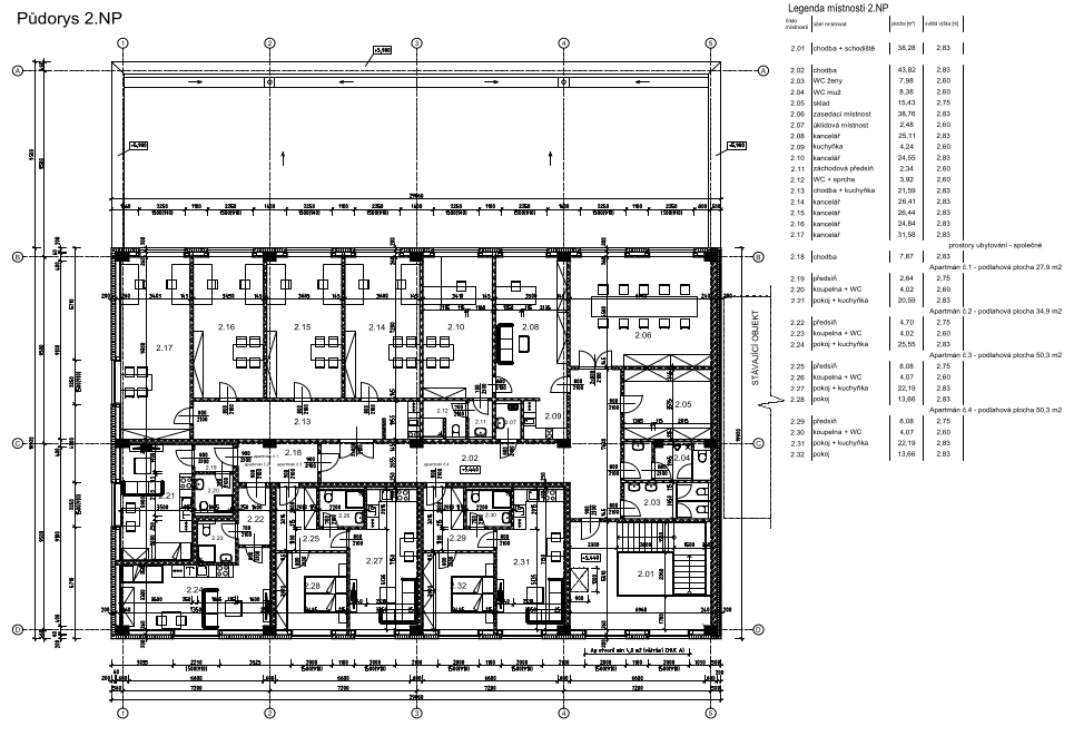
Dispozice - 2 NP
Druhé patro slouží jako administrativní a rezidenční část, která nabízí:
- Kancelářské prostory s možností členění
- Zasedací místnosti nebo zázemí pro zaměstnance
- Možnost vytvořit menší bytové jednotky

Lokalita
Areál se nachází v obci Křečkov u Poděbrad ve Středočeském kraji.
Dostupnost
Klidná lokalita vhodná pro podnikání a každodenní provoz.
5km od lázeňského města Poděbrady.
Výborná dopravní dostupnost dálnice D11.
- PH
50km Praha.
- HR
60km Hradec Králové.
- PA
65km Pardubice.

Galerie








Máte zájem o areál?
Neváhejte nás kontaktovat.